0
fr
Eric COSTANZO Négociateur
Télécharger la fiche
Sous-compromis Nouveauté

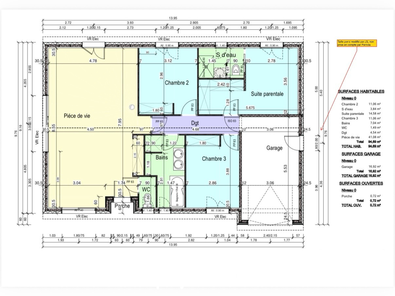
Maison 4 pièce(s) 3 chambre(s) 104 m²

L'Isle-Jourdain (32600)
350 000 € Référence 33864

A propos de ce bien

À seulement 2 min du centre ville, dans un quartier calme résidentiel, venez découvrir cette maison contemporaine de plain pied construite en 2022 et offrant environ 104m2 habitables sur une parcelle de plus de 700m2 avec piscine.

Encore sous garantie dommage ouvrage, cette maison offre tout le confort moderne et des performances énergétiques remarquables.

La pièce de vie lumineuse de plus de 40m2 invite à la convivialité avec sa cuisine ouverte et son poêle à granulés, idéal en cette période hivernale.

Côté nuit, on retrouve deux belles chambres d'enfants avec placards, une salle de bains, une véritable suite parentale avec espace dressing et salle d'eau, ainsi qu'un espace bureau/jeux idéal pour le télétravail.

Un garage à vélo ainsi qu'un abri jardin en bois complètent le bâti.

A l'extérieur, le jardin "tropical" orné d'une belle piscine de 9.6x4 promet de belles journées de détente en été.

Un bien rare à voir sans tarder !


Les informations sur les risques auxquels ce bien est exposé sont disponibles sur le site Géorisques

Caractéristiques de ce bien

  • Surface 104 m²
  • terrain 733 m²
  • séjour 41 m²
  • 3 chambre(s)
  • 2 salle(s) de bain
  • construit en 2022
  • Chauffage individuel : poêle (granules)
  • Chauffage individuel : radiateur (electrique)
  • 1 garage(s)
  • 1 niveau(x)

Diagnostics énergétiques

Consommation énergétique
A B C D E F G
Emission de gaz à effet de serre
A B C D E F G

Montant estimé des dépenses annuelles d'énergie de ce logement pour un usage standard est compris entre 454 € et 614 € . 2021 étant l'année de référence des prix de l'énergie utilisés pour établir cette estimation.

Informations financières

Prix de vente honoraires TTC inclus 350 000 €
Prix de vente honoraires TTC exclus 333 333,30 €
Honoraires TTC à la charge acquéreur 5 %

Autour du bien

  • Commerces et santé
  • Loisirs
  • Ecoles
  • Transports
  • Pratique

Calcul des mensualités

* Champs obligatoires