0
fr
Christelle NOT Négociatrice
Télécharger la fiche
Sous-compromis

Terrain 600 m² 600 m²

Toulouse (31100)
159 000 € Référence 33487

A propos de ce bien

Seulement à l'Equipe Immo !

Dans le quartier résidentiel de St Simon, à proximité immédiate des écoles maternelles, primaires et collège, en accès métro et rocade à moins de 10min avec la base verte de la Ramée à proximité, ce terrain de 600m2 constructible et viabilisé vous offre un cadre de vie idéal pour conjuguer vie citadine et calme.


Orienté Sud Est, il vous garantit une belle exposition et se trouve en retrait du chemin Canto Laouzetto, l'accès au terrain étant sécurisé par un portail automatique.


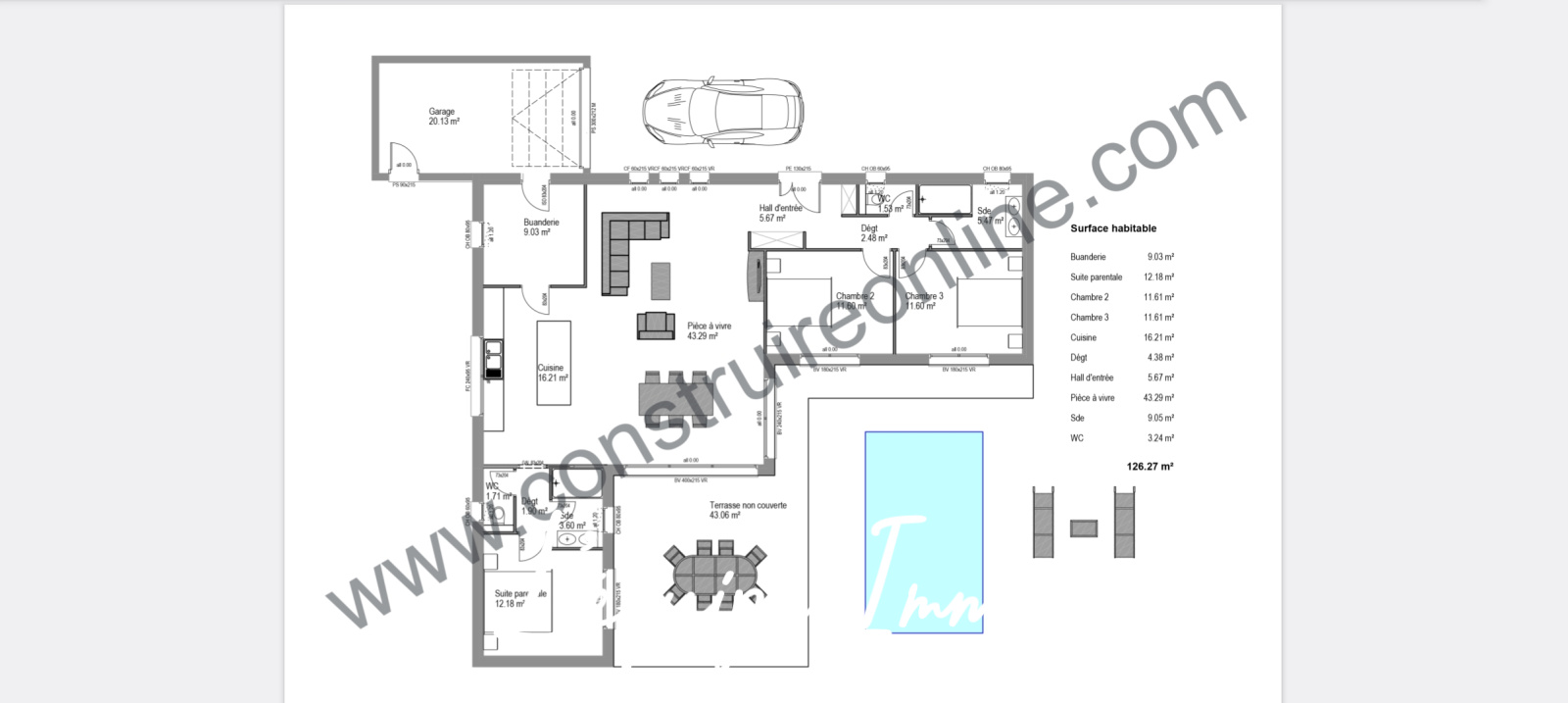
Un travail en collaboration avec Construire on line a été réalisé pour proposer un projet de construction d'habitation idéal tenant compte du terrain avec un budget estimatif. Bien entendu, tout autre type de projet de construction est possible dans le respect des règles d'urbanisme sur le secteur en vigueur.

Le terrain reste à ce jour libre de constructeur et l'étude de sol G1 a été réalisé.


Vous recherchez un cadre de vie paisible associé à une vie citadine, ce terrain vous attend !

Caractéristiques de ce bien

  • terrain 600 m²
  • Chauffage : ()

Diagnostics énergétiques

Consommation énergétique
A B C D E F G
Emission de gaz à effet de serre
A B C D E F G
DPE ANCIENNE VERSION

Informations financières

Prix de vente 159 000 € Les honoraires d'agence seront intégralement à la charge du vendeur

Autour du bien

  • Commerces et santé
  • Loisirs
  • Ecoles
  • Transports
  • Pratique

Calcul des mensualités

* Champs obligatoires